Thin Slab Coil Insert

F-53

Dayton Superior

Quick Overview

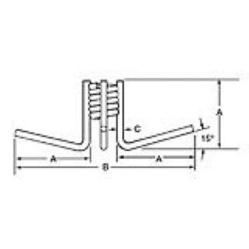
    The Dayton Superior F-53 Thin Slab Coil Insert is designed for lifting thin precast concrete panels from the casting bed and for handling the panels until they are set into their final position. Inserts should be set back 1/2" from the surface of the concrete, maintaining at least 3/4" of concrete below the insert. Minimum spacing between inserts is twice the minimum corner distance. Available in insert heights up to 4".
Interested in this item or want more information?

Hours:

Phone: (310) 973-2018

Email: JSansom@rjssupplies.com

Can't find what you want? Give us a call and we can help you find it.

Additional Information


Manufacturer: Dayton Superior
For More Information on the Thin Slab Coil Insert, [Click Here] to Link to Manufacturer Web Site